Lifestyle Range
Lifestyle Range
Pavilion Retreat
Two offset pavilions for views and sheltered living
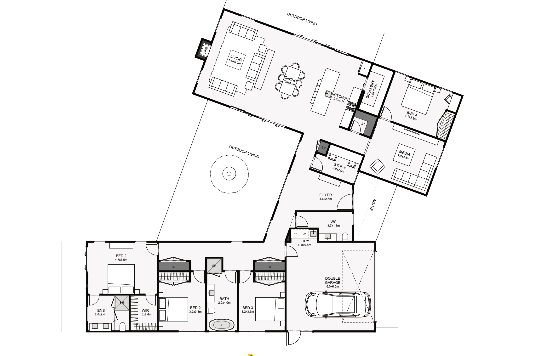
This home is designed with two offset pavilions helping maximise your lifestyle section for views and sheltered outdoor living options. Features inside include four bedrooms, dual-living, a study, scullery and plenty of storage. Right from the time you enter the foyer, you'll be greeted with a view shaft out, over your property and smartly designed living spaces. This is an architectural dream, just waiting to be realised!
Plan Specifications
Bedrooms
4+
Bathrooms
2.5
Garage
Double
Floor Area
268m²
Dimensions
25.6m × 22.0m

Floor Plan

Interested in the Pavilion Retreat?
Get in touch for a free consultation — we can adapt this plan to suit your section.




