Lifestyle Range
Lifestyle Range
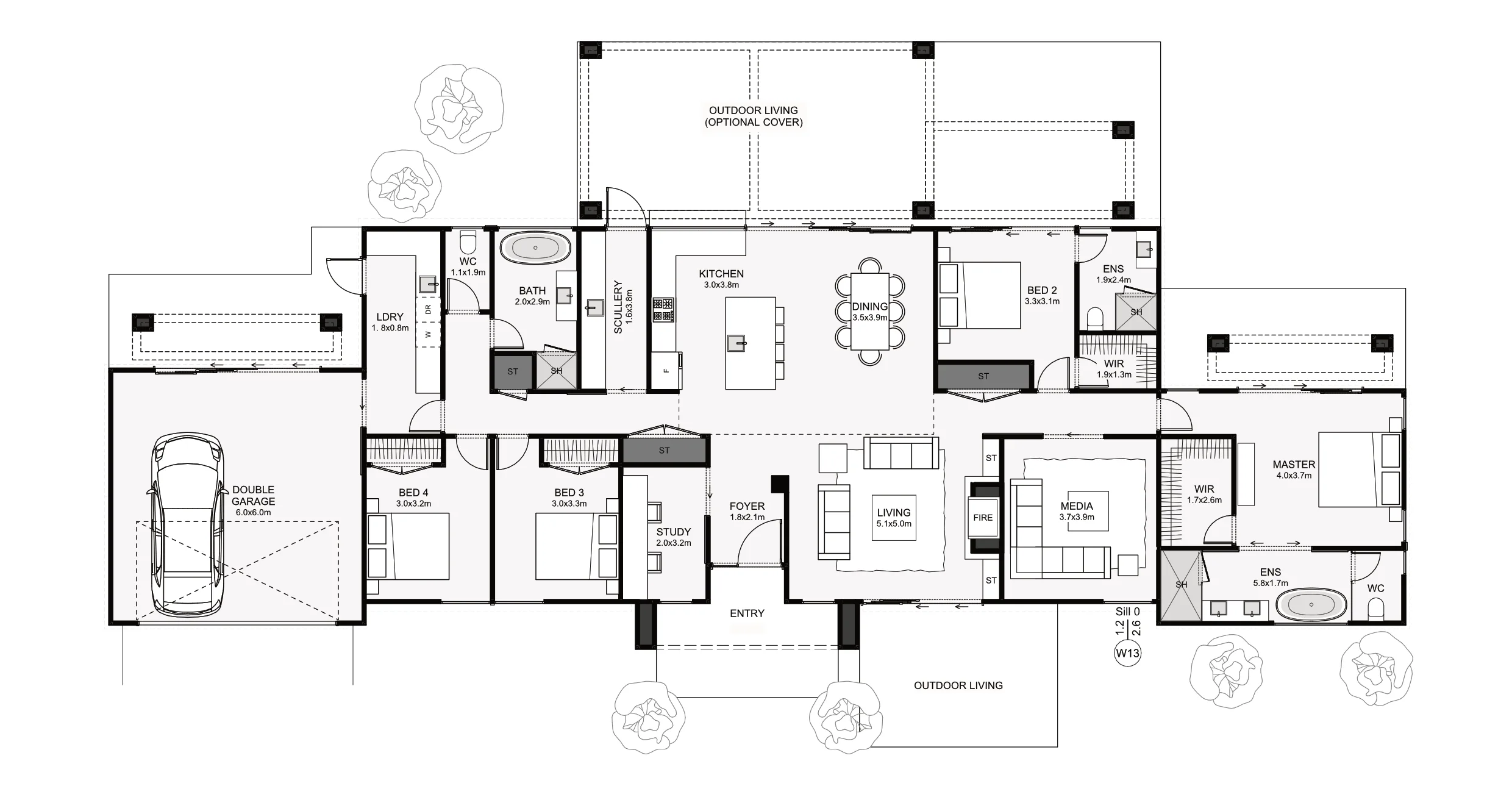
Hawthorne
Barn-style grandeur with a view-forward design
This barn-style home is designed for you if your property has an outlook you want to expose inside and enjoy. The house has a grand entrance centred between three iconic gables. Inside there are four bedrooms, two living spaces, an office, a large scullery and great outdoor flow with optional overhead cover. This home is timeless in design and bold in presence!
Plan Specifications
Bedrooms
4+
Bathrooms
3
Garage
Double
Floor Area
245m²
Dimensions
31.2m × 14.6m

Floor Plan

More from the Lifestyle Range
View allInterested in the Hawthorne?
Get in touch for a free consultation — we can adapt this plan to suit your section.




