Lifestyle Range
Lifestyle Range
Apex
Clean lines, modern and highly practical
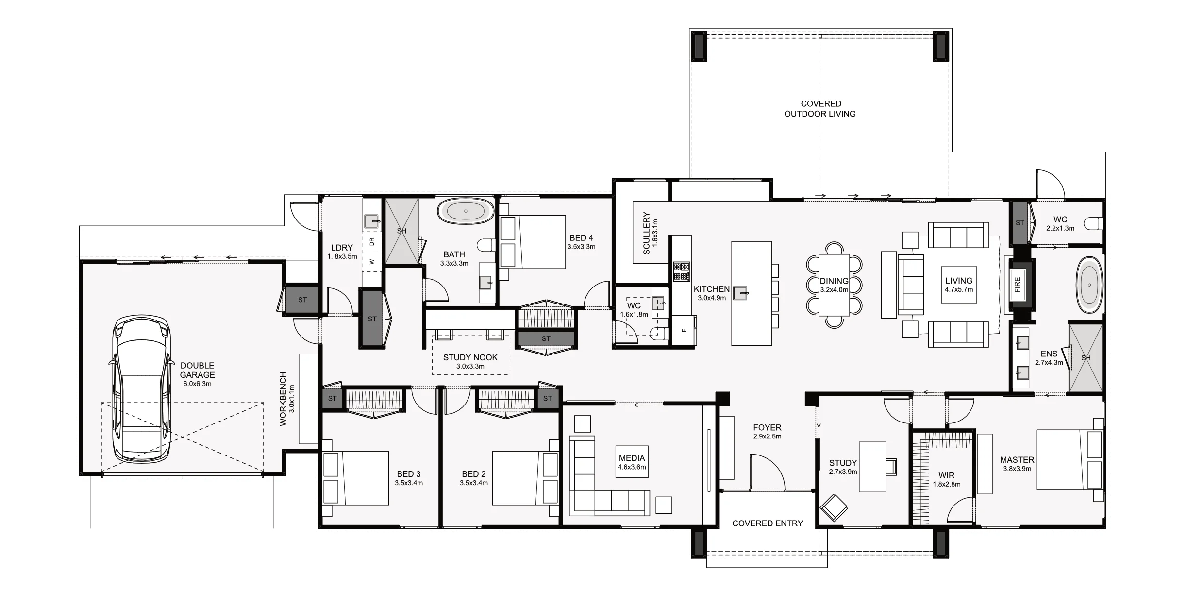
Clean lines, modern and highly practical are three words that sum up this designer home. Inside are four bedrooms, an additional office, a study nook for the kids, a dedicated media room, a large scullery, and an ensuite that will put a smile on your face! Two nice features of this home are the optional fireplace in the ensuite opposite the bath and the office located just off the master via a private hallway. If your home is your sanctuary, this is a build for you!
Plan Specifications
Bedrooms
4+
Bathrooms
2.5
Garage
Double
Floor Area
280m²
Dimensions
30.8m × 15.8m

Floor Plan

More from the Lifestyle Range
View allInterested in the Apex?
Get in touch for a free consultation — we can adapt this plan to suit your section.




