Core Collection
Core Collection
Urban
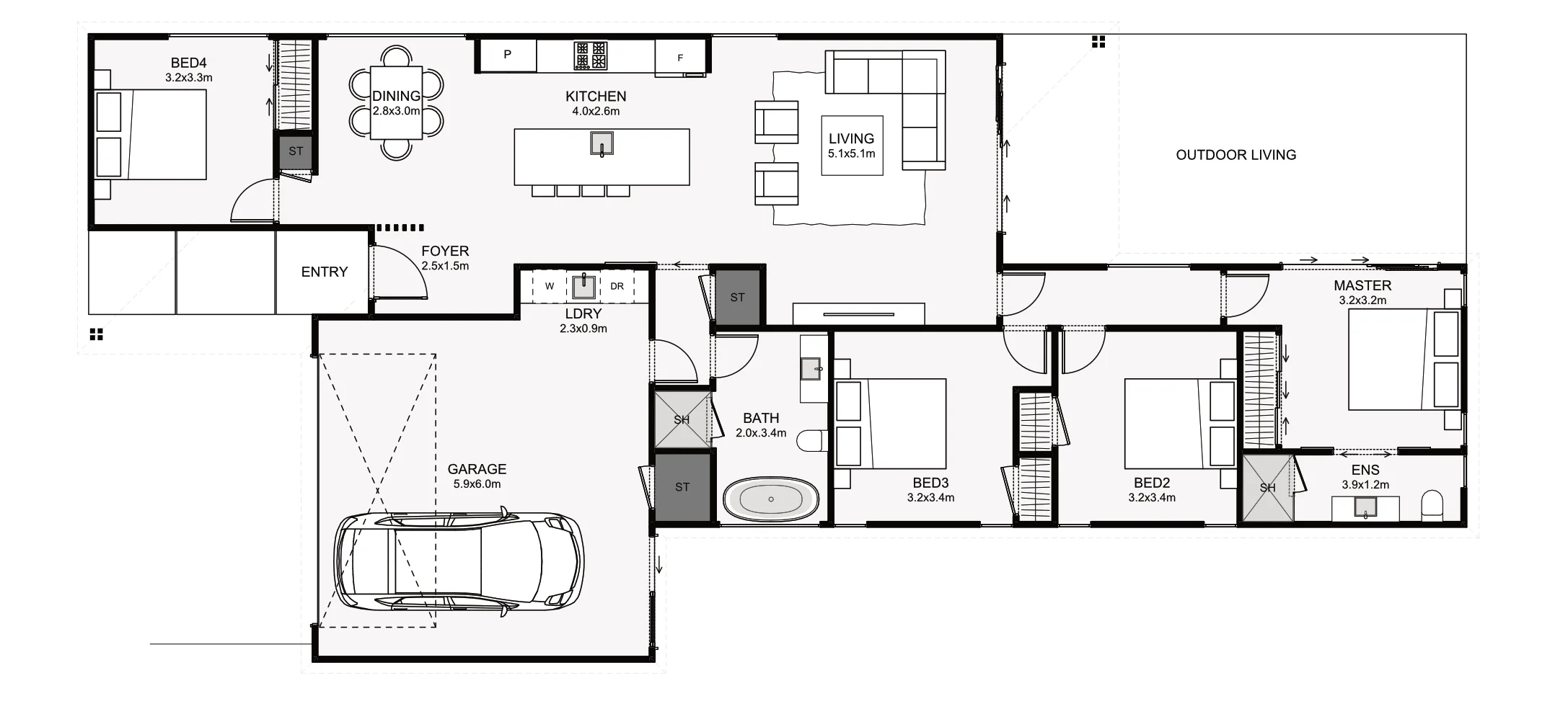
Four bedrooms, big on features
With four bedrooms, this home packs a lot into a small size! The living, kitchen and dining enjoy an open plan layout, leading to a covered outdoor space. A nice feature with this home is the fourth bedroom which is separate from the other rooms and close to the entry. This allows the extra room to be used for guests or an office. The master includes its own ensuite and access to the outdoor living. If you love the classic board and batten with brick style, this is a home that will impress both outside and in!
Plan Specifications
Bedrooms
4
Bathrooms
2
Garage
Single
Floor Area
172m²
Dimensions
24.5m × 11.2m

Floor Plan

Interested in the Urban?
Get in touch for a free consultation — we can adapt this plan to suit your section.




