Core Collection
Core Collection
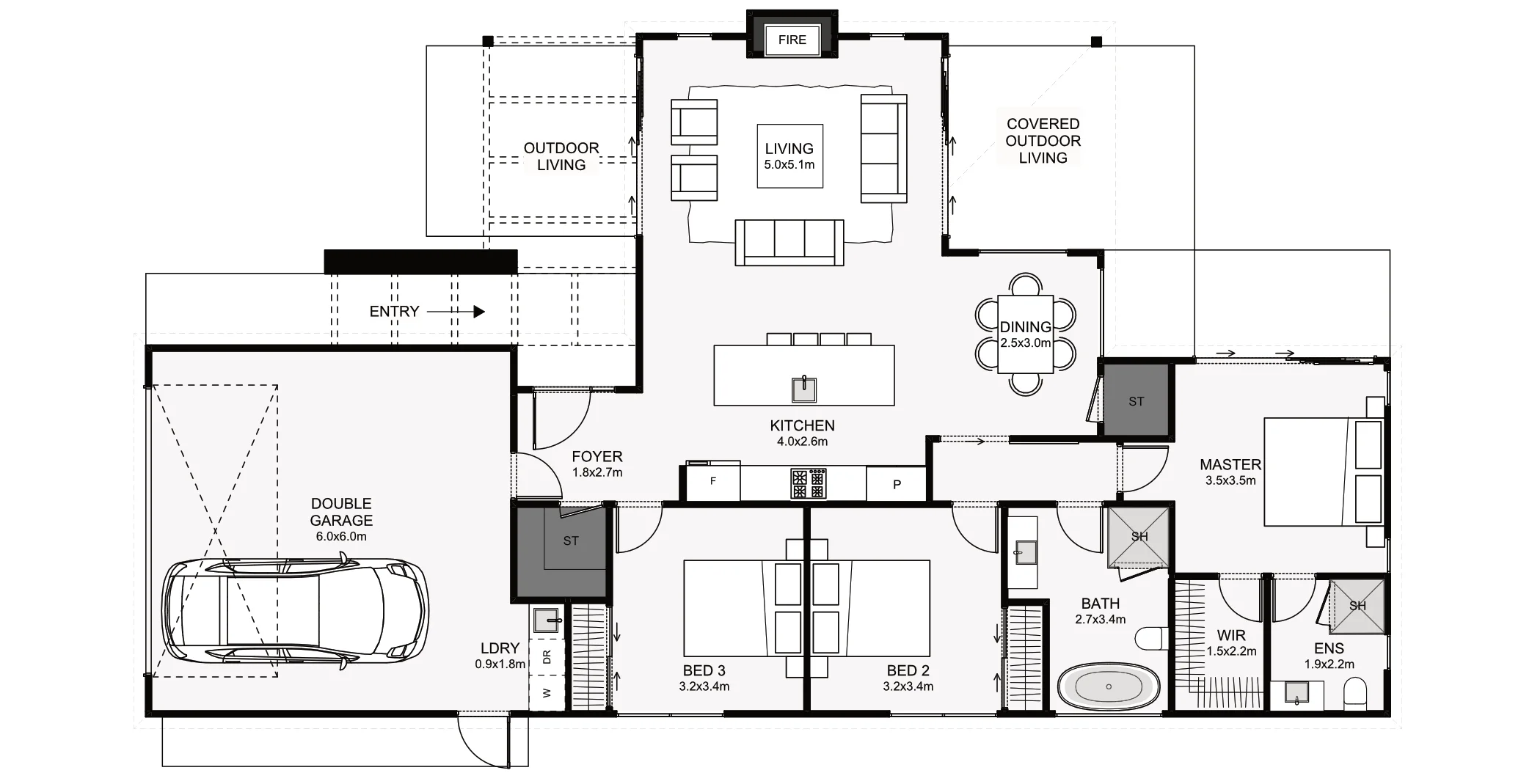
Devon
Timeless charm with indoor-outdoor flow
The shape of this home maximises its outdoor living space. Inside, the living room extends out from the kitchen so both morning and afternoon sun can be enjoyed, also creating two outdoor living spaces. The dining is positioned in a cosy nook allowing for unique ceiling finishes. The master includes an ensuite and walk-in wardrobe; the bathroom can be quickly accessed with its position close to both bedrooms and the living. This home has a sophisticated charm that'll prove timeless in its brick, board and batten exterior!
Plan Specifications
Bedrooms
3
Bathrooms
2
Garage
Double
Floor Area
157m²
Dimensions
20.7m × 11.8m

Floor Plan

Interested in the Devon?
Get in touch for a free consultation — we can adapt this plan to suit your section.




