Core Collection
Core Collection
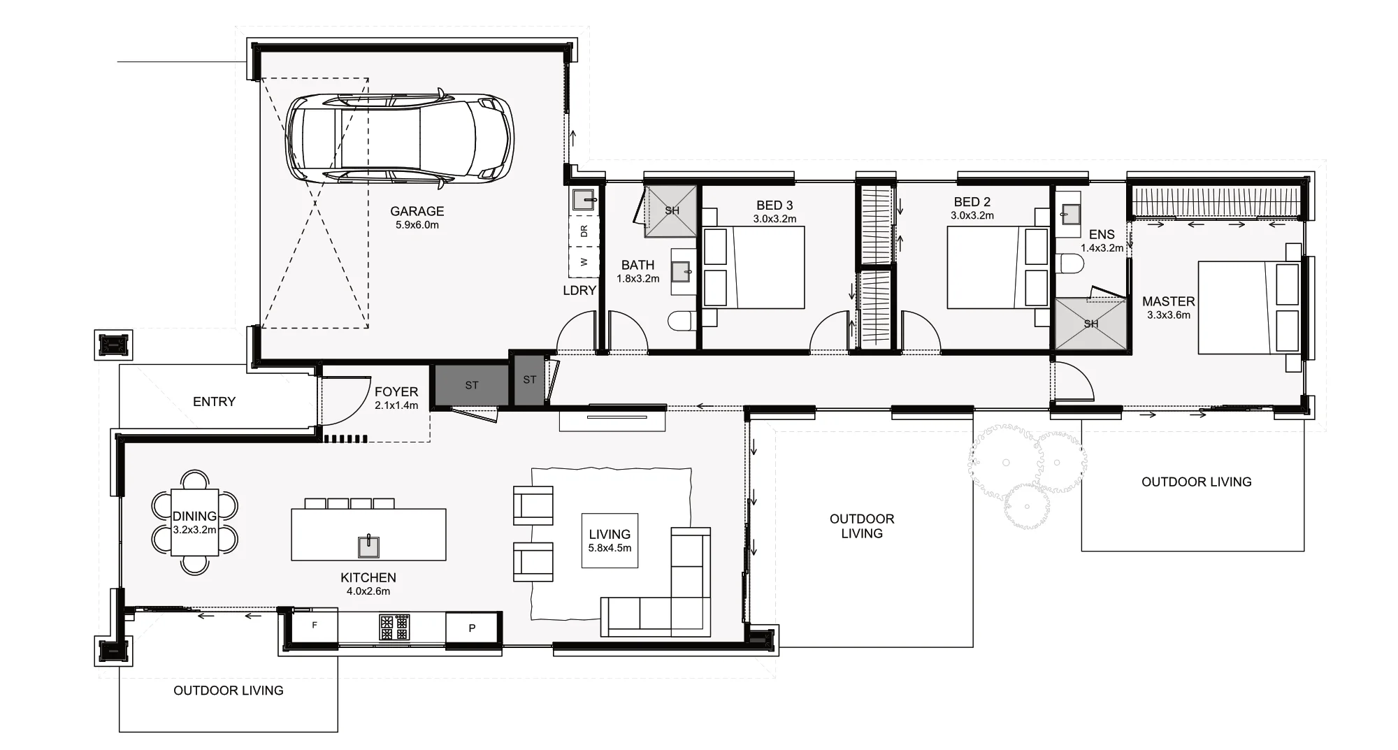
Selwyn
Generous outdoor living in a small footprint
A timeless weatherboard home with brick detailing and a small footprint that doesn't compromise on features. Inside the dining connects to its own morning sun-lit patio. The kitchen and living are both positioned in an open plan layout which extends out to some large outdoor living. If you want a timeless three-bedroom home that makes use of generous outdoor living, this home is worth the look.
Plan Specifications
Bedrooms
3
Bathrooms
2
Garage
Single
Floor Area
158m²
Dimensions
23.4m × 11.9m

Floor Plan

Interested in the Selwyn?
Get in touch for a free consultation — we can adapt this plan to suit your section.




