Kiwiana Range
Kiwiana Range
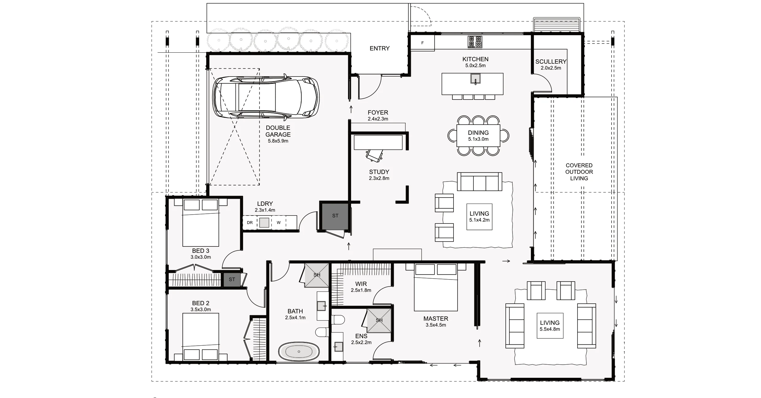
Pukawa
Simple lines, low-slung roofline, optional private lounge
If you like simple lines, this home has a single low-slung roofline, square in shape, meaning you have just two gutters! The roofline helps bring the skeleton of this build out to be enjoyed, both in the covered outdoor living and the recessed garage, which will be your street-front. Another feature is the optional private lounge access off the master, allowing you to watch a movie while the kids are sleeping!
Plan Specifications
Bedrooms
3
Bathrooms
2
Garage
Double
Floor Area
215m²
Dimensions
18.6m × 14.5m

Floor Plan

Interested in the Pukawa?
Get in touch for a free consultation — we can adapt this plan to suit your section.




