Kiwiana Range
Kiwiana Range
Belmont
Dual living with a modern gable roofline
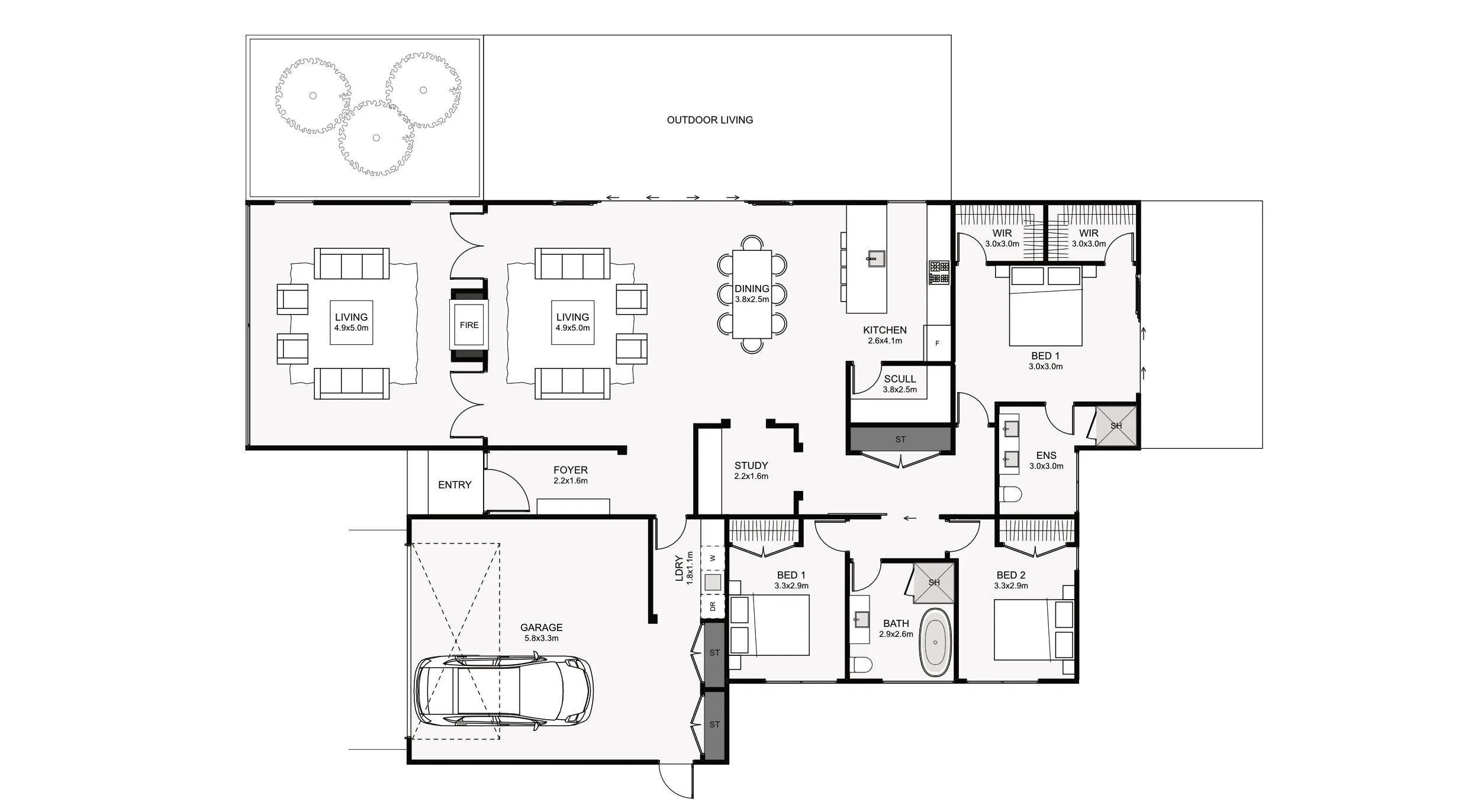
This home is unique with its private road-facing second lounge. An exterior sliding door comes off the lounge allowing for a more private outdoor space. Inside, this home has two good sized living spaces, a semi-open study just off the kitchen and a separate master. If you like modern styling under a gable roofline, this is yours!
Plan Specifications
Bedrooms
3
Bathrooms
2
Garage
Double
Floor Area
246m²
Dimensions
22.2m × 14.0m

Floor Plan

Interested in the Belmont?
Get in touch for a free consultation — we can adapt this plan to suit your section.




